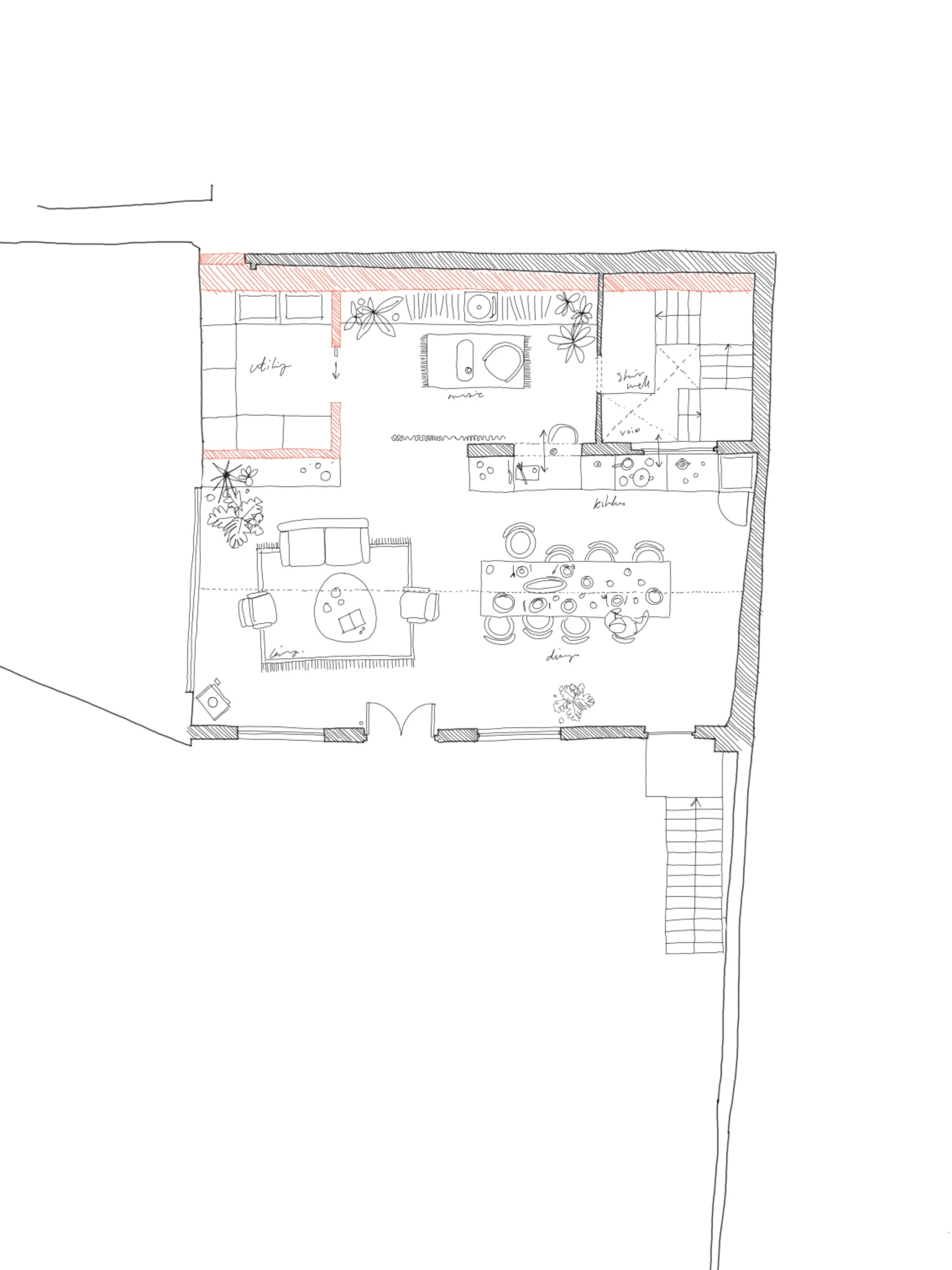
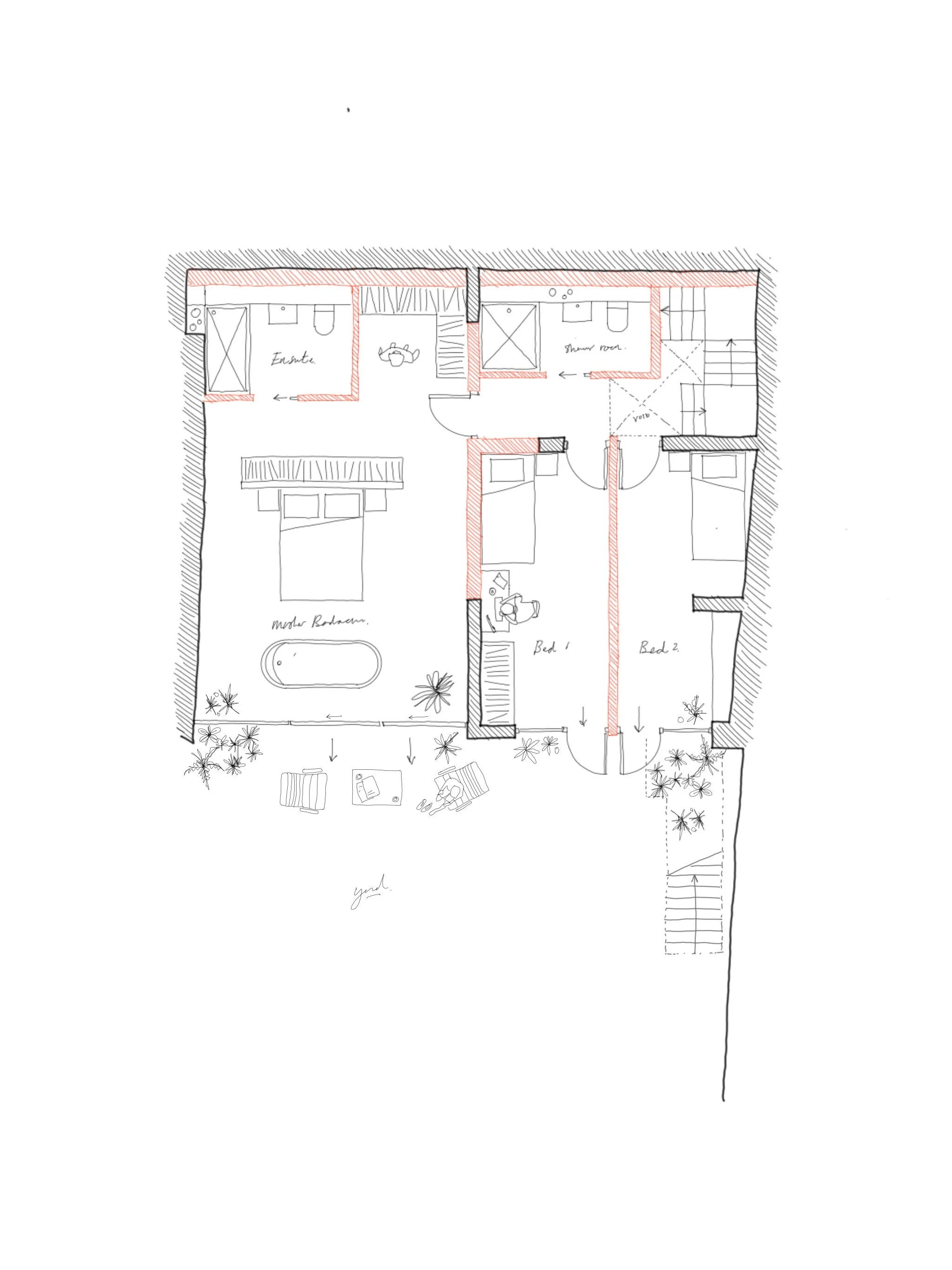
Watson Yard is the restoration of an industrial building within a larger Grade II listed group. Our clients were captivated by its raw character and asked us to help bring it back to life without losing its soul. The design carefully balances heritage and contemporary living: original masonry and structural elements are retained where possible, while new insertions are clearly expressed to respect the building’s history.
The aim is to create a home that feels authentic to its industrial past while offering warmth, comfort, and light for modern family life. The scheme is currently with the planning department, and we look forward to bringing it onto site.
Watson Yard
Status – Planning
Type – Residential
Client – John and Caz
Location – Bollington














