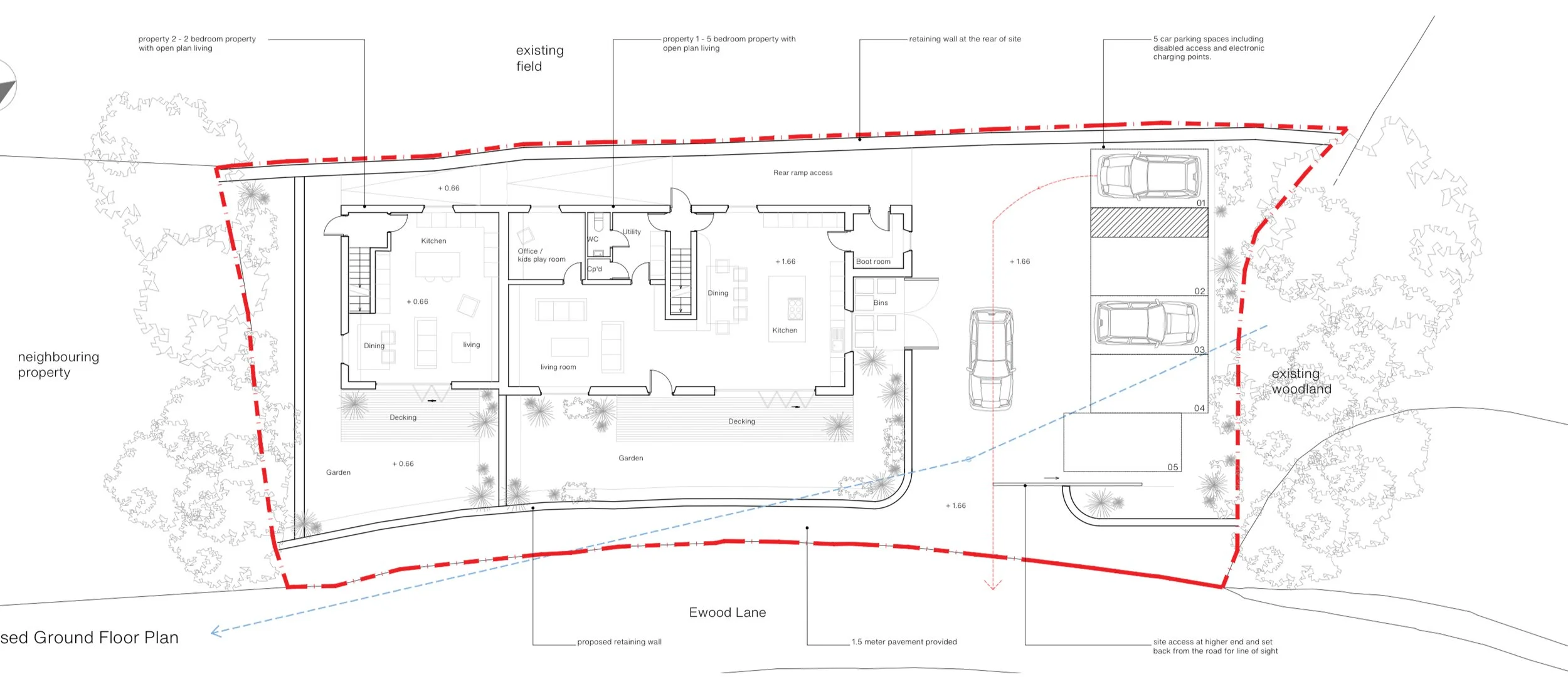
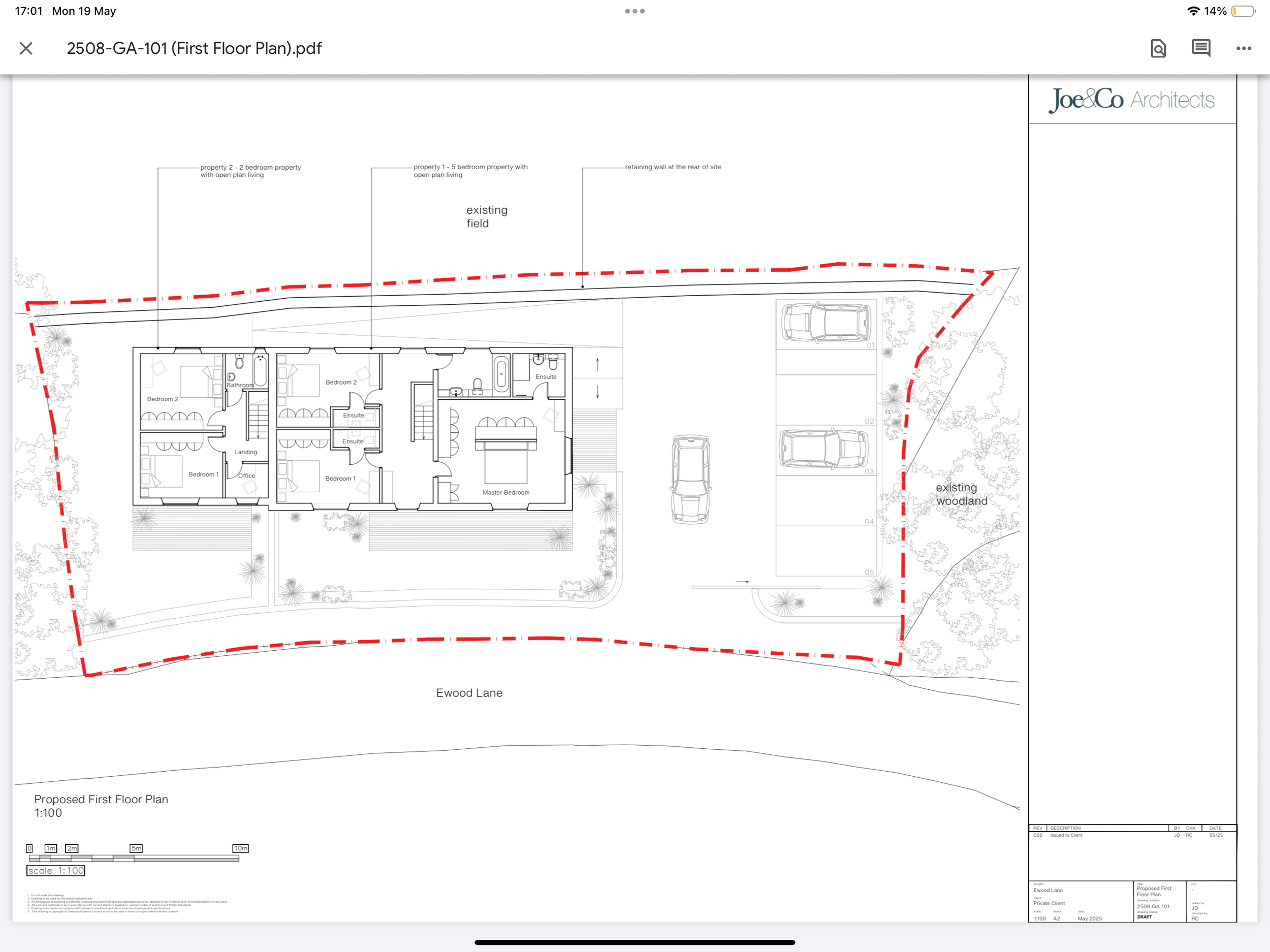
A new family home for a long-held plot of land. The greenbelt infill site, framed by rising ground and a country lane, dictated the footprint. From there, a contemporary design evolved, taking cues from surrounding vernacular buildings but expressed in a modern way.
Rossendale
Status – Submitted to Planning
Type – Residential
Client – Harry
Location – Rossendale








