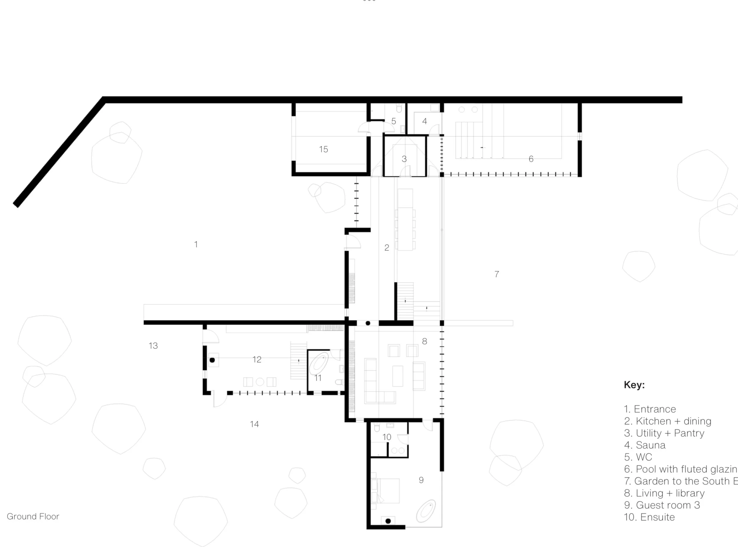
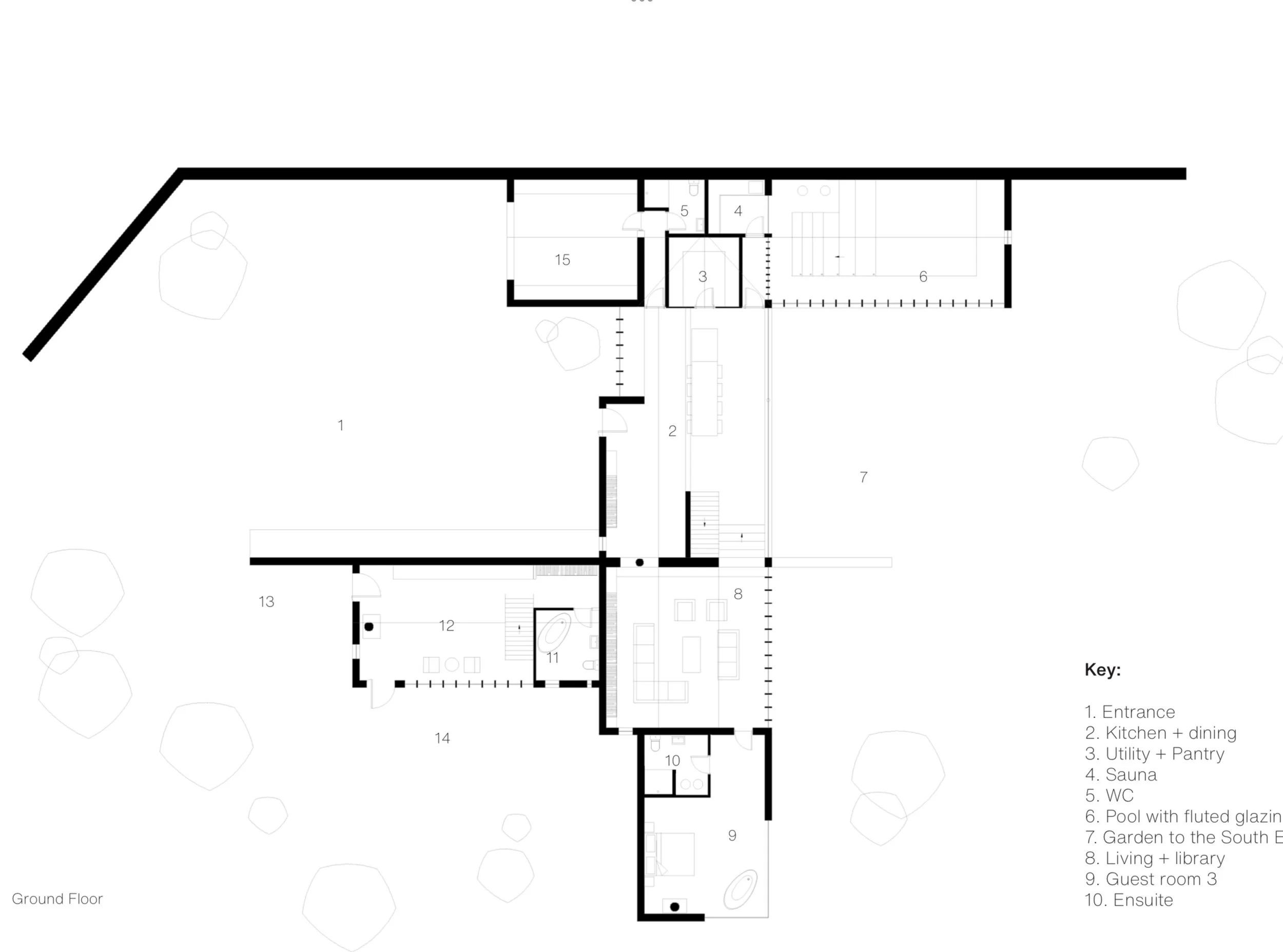
Designed for friends on inherited farmland, the house takes its form from surrounding agricultural buildings. Inside, an expansive plan opens to views down the valley, balancing vernacular inspiration with modern family living.
House on the Moor
Status – Pre-Planning
Type – Residential
Client – Private
Location – The Pennines
Award – MSA 2022 Residential Project Winner (Unbuilt)





